Geschickte Aufteilung, 4 Zimmer und ein sonniger Südostbalkon















Objektdaten auf einen Blick:
| Kaufpreis: | 549.000 € |
| Objektart: | Wohnungen |
| Zimmer: | 4,0 |
| Wohnfläche in m²: | 95 |
| Bezugstermin: | kurzfristig |
| Baujahr: | 2024 |
Objektbeschreibung
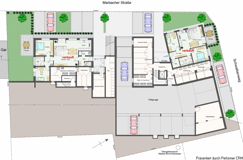
Die 4-Zimmer-Wohnung befindet sich im Obergeschoss eines Neubauprojektes im Zentrum von Remseck-Neckarrems. Sie ist nach Südosten, Südwesten und Nordwesten ausgerichtet. Schlafzimmer, ein Kinder-/Arbeitszimmer und das Tageslichtbad gehen zur Nordwestseite, das zweite Kinder-/Arbeitszimmer sowie der Wohn-/Ess- und Küchenbereich und der davorliegende Balkon sind nach Südosten ausgerichtet und erhalten dadurch besonders viel Helligkeit. Zusätzlich zum Tageslichtbad gibt es noch ein separates Gäste-WC. Im Untergeschoss befindet sich ein Abstell-/Kellerraum, der der Wohnung zugeordnet ist. Eine zentrale Aufzugsanlage verbindet die einzelnen Etagen miteinander und bietet sehr viel Komfort.
Das Gebäude wurde durch einen ortsansässigen Bauträger erstellt und bietet auf drei Wohngeschossen insgesamt 10 großzügige und helle Neubau-Eigentumswohnungen. Die noch zum Verkauf stehenden 3- und 4-Zimmer-Eigentumswohnungen haben attraktive Grundrisse und können kurzfristig bezogen werden.
Unter dem Gebäude erstreckt sich eine Tiefgarage. Ein Tiefgaragenstellplatz oder ein Stellplatz im Freien können separat hinzu erworben werden.
Der Neubau wurde als KfW-55-Gebäude errichtet. Eine bivalente Heizanlage mit Luftwärmepumpe und Gasbrennwertgerät mit Spitzenlastkesseln sorgt für ausreichend Wärme und ist sehr energiesparend.
Alle Räume sind mit einer separat steuerbaren Fußbodenheizung ausgestattet. Die Wohnungen haben jeweils Tageslichtbäder und separate WCs und wurden mit großen sonnigen Balkonen ausgeführt.
Für eine Innenbesichtigung und persönliche Beratung stehen wir Ihnen gerne zur Verfügung.
Objektausstattung
Moderner Designboden-Belag in den Schlafräumen
Fliesen in Bad, Küche, Diele und Wohnraum
Tageslichtbad mit hochwertiger, moderner Ausstattung mit Badewanne, bodenebener Dusche, WC und Waschbecken
Separates WC
Fenster mit Dreifach-Isolierverglasung
Elektrisch betriebene Rollläden
Türen in weiß mit Rundprofil
Bivalente Heizung mit einzelraumgesteuerter Fußbodenheizung
Errichtung einer Leitungsinfrastruktur an jedem Tiefgaragenstellplatz nach § 4 GEIG als Vorrichtung für Elektromobilität
Gerne übersenden wir Ihnen eine detaillierte Baubeschreibung.
Objektlage
Das Neubauprojekt befindet sich im Remsecker Stadtteil Neckarrems. Verschiedene Kindertageseinrichtungen, die Grundschule, ein Bäcker sowie ein Wochenmarkt befinden sich jeweils nur wenige Gehminuten entfernt. Die weiterführenden Schulen sind in Remseck-Aldingen und -Pattonville angesiedelt und mit Bus oder per Fahrrad gut erreichbar. Weitere Einkaufsmöglichkeiten befinden sich in den angrenzenden Stadtteilen.
Remseck ist angebunden an die Stadtbahnlinie U 12. Die nächste Stadtbahnhaltestelle ist die Endhaltestelle Neckargröningen. Sie erreichen diese in 10-15 Gehminuten oder mit dem Stadtbus. Die Stadtbahnlinie U 12 bringt Sie von der Endhaltestelle Neckargröningen in 27 Minuten zum Stuttgarter Hauptbahnhof. Ein modernes Bussystem bedient den öffentlichen Nahverkehr. Es bestehen Busverbindungen innerhalb Remsecks sowie nach Ludwigsburg, Fellbach, Waiblingen und Marbach. Die nächste Bushaltestelle befindet sich in 150 m Entfernung.
Sonstiges
Baujahr: 2024
Heizungsart: Zentralheizung















